At SPK Engineering Consultancy, we are committed to delivering world-class piping design and engineering solutions tailored to the needs of diverse industries such as oil & gas, petrochemical, chemical, and power. Founded with a vision to bridge the gap between practical field experience and technical design excellence, we bring over 20 years of industry expertise to every project. Led by Mr. Parag Kundaickar, SPK stands as a symbol of Strength, Precision, and Knowledge. We pride ourselves on our client-first approach, ensuring that every design we deliver is safe, sustainable, cost-effective, and code-compliant. Our Core Offerings: Pre-bid Engineering Support & Bulk MTO Piping Layouts, Isometrics, and Support Design Piping and Valve Material Specifications 3D Modelling and Pipe Stress Analysis Equipment Layouts and Plot Plans Valve Datasheets, MR & TBE PMC Roles & Design Document Validation On-Site Engineering Support At SPK, we focus on concept clarity, interdisciplinary coordination, and practical solutions to minimize rework and maximize project efficiency. Our passion for engineering excellence is matched by our dedication to training and mentoring the next generation of piping engineers, empowering them with real-world insights and best practices.
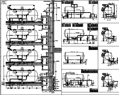
Read MoreWe specialize in complete piping design engineering solutions including feasibility studies, conceptual and detailed design, 3D modeling, plot plans, equipment layouts, isometric drawings, and on-site support for oil & gas, petrochemical, and chemical industries.
we provide comprehensive design and consultancy services for both greenfield (new plant setups) and brownfield (modifications to existing plants) projects.
We are based at:
Cabin 41, DFactory, Ambadi Road, Sai Nagar, Vasai West, Vasai–Virar, Maharashtra, India.
You can reach us through our website www.spkec.com or contact us directly via email or phone listed on our contact page.
© Copyright 2026 SPK Engineering Consultancy All rights reserved | Design & Developed By FossTechUzon